高野台3丁目・新築戸建・C号棟

6,780万円

東京都練馬区高野台3丁目17-9

西武池袋線「練馬高野台」駅徒歩10分

西武池袋線「石神井公園」駅徒歩12分

価格
6,780万円
間取り
1LDK+2S(納戸)
土地面積
83.28㎡
所在地
東京都練馬区高野台3丁目17-9
交通

西武池袋線練馬高野台」駅 徒歩10分

西武池袋線石神井公園」駅 徒歩12分

建物面積
80.00㎡
築年月
2026年1月(予定)

物件の特徴

  • 室内洗濯機置場

  • TVモニタ付きインターホン

  • カウンターキッチン

  • 浴室乾燥機

セールスポイント

借景で日当たり良好♪LDK16帖超+3部屋+P、設備充実!床暖房2面設置。

ポイント

LDK床暖房2面 固定階段式小屋裏収納4.4帖 お風呂1618サイズと広々 浄水機能付水栓 浴室換気乾燥機 2階建て 瑕疵担保責任保険保証付 地盤保証10年 建物保証

担当者のコメント

正田 英公

練馬区高野台の静かな住宅街に佇む新築戸建。3LDK+小屋裏収納で収納充実。隣家のお庭を借景に心地よい日差しと風を感じられ、西武池袋線2駅利用可能。

基本情報

販売戸数
-
総戸数
-
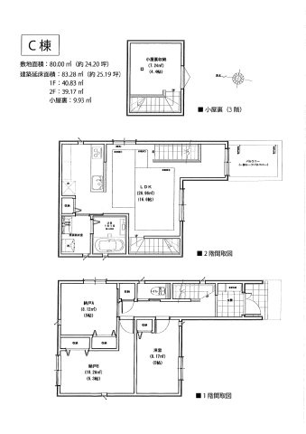
間取り / 詳細
1LDK+2S(納戸)
LDK 16.6帖/洋室 5.0帖/S 6.3帖/S 6.3帖
小屋裏収納4.4帖
向き
-
建物面積(坪数)
80.00㎡(24.2坪)
土地面積(坪数)
83.28㎡(25.19坪)
建ぺい率 /
容積率
60%/100%
築年月
2026年1月(予定)
駐車場 /
月額料金
有 0円
土地権利
所有権
土地
(敷金 / 保証金)
- / -
建物構造
木造 / 2階建
傾斜地部分面積
-
路地状敷地
-
私道負担面積
-
セットバック
高圧線下面積
-
施工会社
-
用途地域
第一種低層住居専用
地目 / 地勢
宅地 / 平坦
接道状況
一方(南 私道 4.0m)
国土法届出要否
不要
都市計画
市街化区域
総区画数 /
販売区画数
-/-
現況
未完成
その他
法令上の制限
-
取引態様
仲介
引渡し
相談
取引条件の
有効期限
2026年01月22日

設備条件

設備条件
  • 室内洗濯機置場 / 都市ガス / 公営水道 / 公共下水 / 電気有 / ガスコンロ / コンロ2口以上 / 食器洗い乾燥機 / システムキッチン / カウンターキッチン / コンロ3口 / 浴室乾燥機 / 温水洗浄便座 / 床暖房 / TVモニタ付インターホン
設備(その他)
    -

その他

物件番号
97155471
管理コード
-
建築確認番号
第FBC建確済25-0331号
情報更新日
2026年01月08日
次回更新予定日
2026年01月22日
取扱会社
  • グリーン不動産株式会社
  • 東京都杉並区阿佐谷北4丁目9-21 シティハイツ阿佐ヶ谷1階
  • TEL:03-5356-1521
  • 東京都知事 (1) 第106392号
備考
こだわりポイント満載の高野台3丁目・新築戸建・C号棟。徒歩10分の場所に練馬区立谷原小学校があります。多くの方から高いニーズのある、内装もピカピカの新築戸建ての物件です。明るい生活を送るには、快適な住環境が必要不可欠です。ぜひ当社で素敵で快適な不動産を探しをしていきませんか。当社は数多くの不動産情報を取り扱っております。

周辺施設

  • 建デポ 練馬高野台店の画像

    ホームセンター

    建デポ 練馬高野台店

    322m(5分)

  • セブンイレブン 練馬高野台4丁目店の画像

    コンビニエンスストア

    セブンイレブン 練馬高野台4丁目店

    417m(6分)

  • 順天堂練馬病院の画像

    総合病院

    順天堂練馬病院

    465m(6分)

  • 練馬区立石神井東中学校の画像

    中学校

    練馬区立石神井東中学校

    469m(6分)

  • 練馬高野台駅前郵便局の画像

    郵便局

    練馬高野台駅前郵便局

    540m(7分)

  • 西友 高野台店の画像

    スーパー

    西友 高野台店

    567m(8分)

  • 薬局トモズ 練馬高野台店の画像

    ドラッグストア

    薬局トモズ 練馬高野台店

    573m(8分)

  • ハックドラッグピーコック高野台店の画像

    ドラッグストア

    ハックドラッグピーコック高野台店

    646m(9分)

  • 光が丘警察署練馬高野台駅前交番の画像

    警察

    光が丘警察署練馬高野台駅前交番

    648m(9分)

  • ザ・ダイソー ピーコックストア高野台店の画像

    スーパー

    ザ・ダイソー ピーコックストア高野台店

    651m(9分)

  • セブンイレブン 練馬高野台駅前店の画像

    コンビニエンスストア

    セブンイレブン 練馬高野台駅前店

    692m(9分)

  • クイーンズ伊勢丹石神井公園店の画像

    スーパー

    クイーンズ伊勢丹石神井公園店

    707m(9分)

  • ガスト 谷原店(から好し取扱店)の画像

    ファミリーレストラン

    ガスト 谷原店(から好し取扱店)

    732m(10分)

  • ファミリーマート 石神井公園店の画像

    コンビニエンスストア

    ファミリーマート 石神井公園店

    736m(10分)

  • 練馬区立谷原小学校の画像

    小学校

    練馬区立谷原小学校

    740m(10分)

  • ウエルシア練馬谷原店の画像

    ドラッグストア

    ウエルシア練馬谷原店

    826m(11分)

  • 練馬区立光和小学校の画像

    小学校

    練馬区立光和小学校

    934m(12分)

  • 練馬区立富士見台小学校の画像

    小学校

    練馬区立富士見台小学校

    1023m(13分)

  • 練馬高野台郵便局の画像

    郵便局

    練馬高野台郵便局

    1034m(13分)

  • 北原緑地の画像

    公園

    北原緑地

    1133m(15分)

支払いシミュレーション

月々の支払額
9.6
購入希望物件価格
万円
頭金
万円
金利
%
返済額(ボーナス1回分)
万円
返済期間

※ボーナスは自動で年2回分で計算されます。

近隣の物件

  1. 石神井台8丁目・新築戸建・1号棟

    練馬区石神井台8丁目

    2SLDK (102.78㎡)

    7,599万円

  2. 高野台3丁目・新築戸建・A号棟

    練馬区高野台3丁目

    1SLDK (80.00㎡)

    6,780万円

  3. 練馬区南田中1丁目(リユース)

    練馬区南田中1丁目

    3LDK (86.53㎡)

    6,199万円

  4. 南田中4丁目・新築戸建・1号棟

    練馬区南田中4丁目

    3LDK (77.75㎡)

    6,480万円

高野台3丁目・新築戸建・C号棟

高野台3丁目・新築戸建・C号棟

6,780万円

-

1LDK+2S(納戸)(80.00㎡)

お気軽にお問い合わせください

無料お問い合わせ

グリーン不動産株式会社

03-5356-1521

10:00~18:00

(休:水曜日・年末年始)